Nadstropje 5
nadstropje 6
nadstropje 4
nadstropje 3
nadstropje 2
nadstropje 1
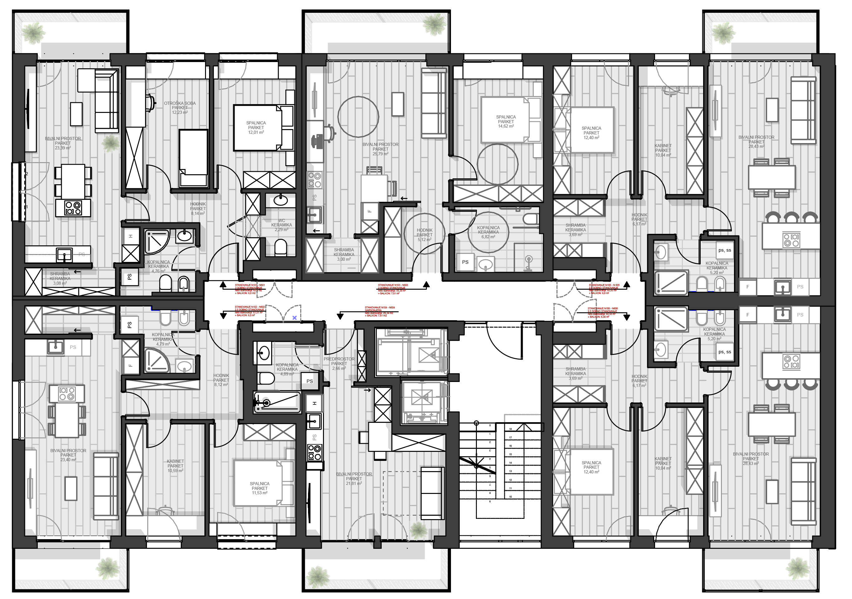
Blok F
Leva lamela
STANOVANJE F_N101-N601
3-sobno stanovanje; vogalno stanovanje SZ
- 23,39 m2
- 8,14 m2
- 12,01 m2
- 12,23 m2
- 4,76 m2
- 3,08 m2
- 2,29 m2
- 5,98 m2
- 12,50 m2
- 84,38 m2
STANOVANJE F_N102-N602
2,5-sobno stanovanje; vogalno stanovanje JZ
- 23,40 m2
- 8,12 m2
- 10,59 m2
- 4,79 m2
- 3,08 m2
- 11,53 m2
- 5,98 m2
- 12,50 m2
- 79,99 m2
STANOVANJE F_N103-N603
2-sobno stanovanje; orientacija S
- 25,79 m2
- 5,12 m2
- 6,82 m2
- 14,62 m2
- 3,00 m2
- 7,61 m2
- 12,50 m2
- 75,46 m2
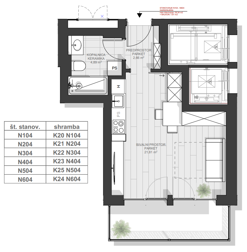
STANOVANJE F_N104-N604
garsonjeraa; orientacija J
- 21,79 m2
- 2,66 m2
- 4,89 m2
- 7,61 m2
- 3,47 m2
- 12,50 m2
- 52,92 m2
STANOVANJE F_N105-N605
2,5 sobno stanovanje; orientacija S
- 28,43 m2
- 6,17 m2
- 5,20 m2
- 3,67 m2
- 12,34 m2
- 10,04 m2
- 6,00 m2
- 12,50 m2
- 84,35 m2
STANOVANJE F_N106-N606
2,5 sobno stanovanje; orientacija J
- 28,43 m2
- 6,17 m2
- 5,20 m2
- 3,69 m2
- 12,40 m2
- 10,04 m2
- 6,00 m2
- 12,50 m2
- 84,43 m2
Blok F
Desna lamela
STANOVANJE F_N107-N607
2,5 sobno stanovanje; orientacija S
- 28,43 m2
- 6,17 m2
- 5,19 m2
- 3,67 m2
- 12,34 m2
- 10,04 m2
- 5,95 m2
- 12,50 m2
- 84,29 m2
STANOVANJE F_N108-N608
2,5 sobno stanovanje; orientacija J
- 28,43 m2
- 6,17 m2
- 5,20 m2
- 3,69 m2
- 12,41 m2
- 10,05 m2
- 5,95 m2
- 12,50 m2
- 84,40 m2
STANOVANJE F_N109-N609
2 sobno stanovanje; orientacija S
- 25,79 m2
- 5,12 m2
- 6,82 m2
- 14,62 m2
- 3,00 m2
- 7,61 m2
- 12,50 m2
- 75,46 m2
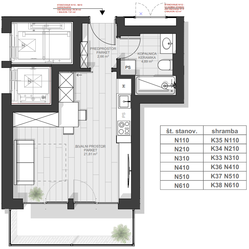
STANOVANJE F_N110-N610
Garsonjera; orientacija J
- 21,79 m2
- 2,62 m2
- 4,89 m2
- 7,61 m2
- 3,46 m2
- 12,50 m2
- 52,87 m2
STANOVANJE F_N111-N611
3 sobno stanovanje; vogalno stanovanje SV
- 23,45 m2
- 8,14 m2
- 12,01 m2
- 12,23 m2
- 4,76 m2
- 3,08 m2
- 2,29 m2
- 5,98 m2
- 12,50 m2
- 84,44 m2
STANOVANJE F_N112-N612
2,5 sobno stanovanje; vogalno stanovanje JV
- 23,40 m2
- 8,12 m2
- 10,59 m2
- 4,79 m2
- 3,08 m2
- 11,53 m2
- 5,98 m2
- 12,50 m2
- 79,99 m2
Slike stanovanj in sob
hodnik
otroška soba
bivalni prostor
spalnica
kopalnica
hodnik

otroška soba

bivalni prostor


spalnica

kopalnica

N101-N601
hodnik
otroška soba
Bivalni prostor
spalnica
hodnik

otroška soba

Bivalni prostor

spalnica

N102-N602
hodnik
kopalnica
spalnica
Bivalni prostor
hodnik

kopalnica

spalnica

Bivalni prostor

N103-N603
hodnik
kopalnica
bivalni prostor
spalnica
hodnik

kopalnica

bivalni prostor


spalnica

N104-N604
hodnik
spalnica
kopalnica
bivalni prostor
hodnik

spalnica

kopalnica


bivalni prostor


N105-N605
hodnik
spalnica
kopalnica
bivalni prostor
hodnik

spalnica


kopalnica

bivalni prostor


N106-N606
hodnik
spalnica
kopalnica
bivalni prostor
hodnik

spalnica


kopalnica

bivalni prostor


N107-N607
hodnik
spalnica
kopalnica
bivalni prostor
hodnik

spalnica


kopalnica

bivalni prostor


N108-N608
hodnik
spalnica
kopalnica
bivalni prostor
hodnik

spalnica


kopalnica

bivalni prostor


N109-N609
hodnik
spalnica
kopalnica
bivalni prostor
hodnik

spalnica


kopalnica

bivalni prostor


N110-N610
hodnik
spalnica
kopalnica
bivalni prostor
hodnik

spalnica


kopalnica


bivalni prostor


N111-N611
hodnik
spalnica
otroška soba
bivalni prostor
hodnik

spalnica


otroška soba


bivalni prostor

N112-N612
hodnik
spalnica
kopalnica
bivalni prostor
hodnik

spalnica


kopalnica

bivalni prostor


Prednosti
Glavne značilnosti
Stanovanja
72 stanovanj, različnih velikosti, nekaj za vsakega
Okolica
Urejena in čudovita okolica, v bližini parka in reke
Odlična lokacija
V bližini stanovanj se nahajajo trgovine, postaje javnega prevoza, možnosti izobrazbe, trgovine, bolnišnica ...
Tehnologija
Gradimo z najnovejšimi pristopi za čim boljše ugodje
// za dodatna vprašanja //
051 221 022